Découvrez le modèle Laka
Plan maison Laka à vendre :
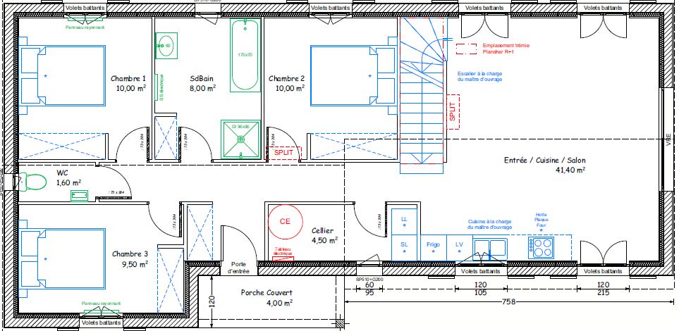
Maisons Aliénor, spécialiste de la construction en Dordogne, Corrèze et Charente, vous présente son modèle de maison Laka. Ce modèle de plain-pied de 85 m² est moderne, lumineux, et largement ouvert sur l’extérieur. Ainsi, il a été conçu pour offrir un cadre de vie agréable, parfaitement adapté à toutes vos attentes. En effet, le modèle Laka est idéal pour ceux qui recherchent à la fois confort et modernité. Son espace de vie de 41,40 m² est parfait pour des moments conviviaux en famille ou entre amis. De plus, il propose un équilibre parfait entre fonctionnalité et esthétique. Chaque détail de la maison a donc été pensé pour améliorer votre quotidien.
Cette maison se distingue par une organisation bien pensée, séparant clairement les espaces de jour et de nuit pour garantir à la fois intimité et convivialité.
Derrière une façade élégante on découvre :
🏠 Une maison ergonomique et confortable de 85 m²,
🍴 Une cuisine ouverte sur un espace de vie particulièrement lumineux et spacieux,
🛋 une grande pièce à vivre de 41.40 m²,
🛏 L’espace nuit s’articule autour de trois chambres proposant des espaces de rangements faciles à aménager,
🛁 Une agréable salle d’eau,
🚽 Un toilette séparé.
La singularité du modèle de maison Laka réside dans ses toitures variées, avec des inclinaisons de 35%, 70% et 120%. En conséquence, chaque futur propriétaire peut personnaliser sa maison selon ses goûts esthétiques et ses besoins fonctionnels. Que vous préfériez une touche traditionnelle ou un design plus contemporain, il y a une option pour chacun. Les différentes options de toiture jouent par ailleurs un rôle essentiel dans l’efficacité énergétique et la durabilité de la maison. En effet, elles permettent une meilleure gestion thermique, contribuant ainsi à réduire l’empreinte écologique.
Opter pour le modèle Laka, c’est donc choisir une maison qui combine modernité et confort. Elle offre un cadre de vie agréable et sain, tout en étant construite avec des matériaux durables et écologiques. Ce modèle reflète ainsi notre engagement envers une construction responsable.
De plus, laissez-vous séduire par le charme intemporel de Laka. C’est une maison qui reflète votre personnalité tout en offrant un confort quotidien exceptionnel. Vous pourrez explorer toutes les possibilités de personnalisation et commencer à construire la maison de vos rêves.
Ce modèle de maison est à titre d’exemple afin de vous donner des idées et de vous montrer le travail effectué. Cependant, nous mettons un point d’honneur à créer pour vous le plan de la maison qui VOUS convient, qui VOUS ressemble, dans le budget que vous nous annoncez aussi bien dans le traditionnel que dans le contemporain !
Nos modèles de maisons sont 100% personnalisables !
Pour de plus amples informations,
veuillez nous contacter 05 33 09 12 33 !
La maison sera équipée d’une pompe à chaleur installée par notre partenaire Aliénor Génie Climatique un système réversible, à la fois pour chauffer l’espace en hiver et pour le rafraîchir durant les périodes de chaleur. Ainsi, vous pourrez profiter de confort tout au long de l’année.
Ensemble, trouvons le terrain qui correspondra à tous vos critères. Grâce à nos commerciaux Maisons Aliénor, votre projet de rêve deviendra réalité ! Répondre à vos attentes est au cœur de notre mission de constructeur de maisons individuelles.
N’attendez plus et contactez-nous sans plus tarder !